
When CO2 is injected into a reservoir as an enhanced oil recovery (EOR) method, there are some concerns about the negative effects on the existing processing facilities induced from CO2 breakthrough and CO2 rich fluid. Therefore, to sort out such concerns, JOE in cooperation with a corrosion expert company conducted the study of CO2 impact which is very important in validating the CO2-EOR operation. Along with this impact study, planning of CO2-EOR pilot test was also conducted where JOE carried out a one-through outline of CO2-EOR pilot test including the procurement of available CO2, onshore/offshore transportation methods and feasible injection operation method.
CO2-EOR impact study on offshore facilities included the following three subjects.
(1)CO2-EOR Impact Study on Production Facilities and Wells after CO2 Breakthrough
Corrosion rate and potential of scale formation and asphaltene precipitation were estimated. Mitigation measures for these potential anomaly were also studied based on the estimated results.
(2)Monitoring of CO2 Leakage during CO2-EOR Pilot Test
Monitoring methods to confirm CO2 leakage and movement were studied.
(3)CO2 Impact on Abandoned Wells and Abandonment of Production Facilities
Abandonment methods of production facilities were studied and CO2 impact on abandoned wells were also studied.
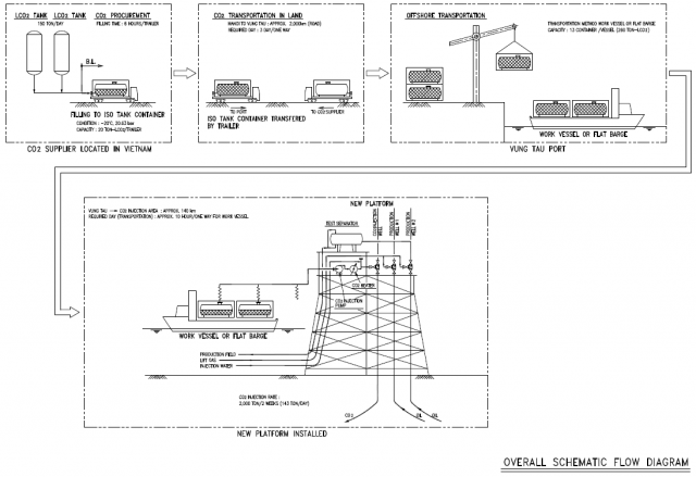
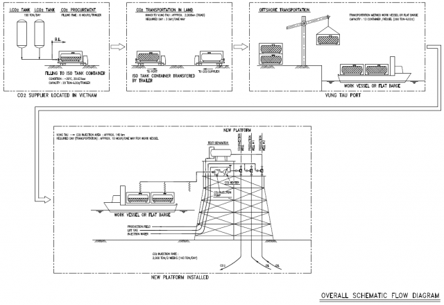
Planning of CO2-EOR pilot test at offshore oil field included the following two main subjects.
(1)Planning of CO2-EOR Pilot Test
Study philosophies such as CO2 procurement location, CO2 transportation, CO2-EOR pilot test concept considering whether to install a new platform, flowline requirement, injection facilities option were determined through this study and further process study were conducted based on the determined study philosophy.
(2)Estimation of Project Schedule and Project Cost
Based on the selected option that was determined in the study above, the project schedule and the project cost were estimated.
Copyright© Japan Oil Engineering Company Ltd. (JOE), All Rights Reserved