
CO2を地下の油層に圧入して原油の増進回収を行う場合、増生産された原油は通常よりもCO2が多く含まれて生産されることが想定されます。そこで原油に含まれるCO2が多くなることで既存生産設備に対してどのような影響が発生するのかを調査しました。また、CO2圧入による原油の増進回収を実現するための実証試験(パイロットテスト)の実施計画について、圧入するCO2の調達先から、運搬方法およびCO2を圧入する設備に至るまで一貫した概念検討を行いました。以下に業務の内容を示します。
(1) CO2を多く含む原油を処理する際の生産設備や坑井への影響調査
生産設備や坑井への影響について次の2項目を実施しました。
1) 特定油田を対象とした具体的な既存設備への影響調査
腐食を専門とする会社を交えて、CO2が含まれた原油によってCO2がブレークスルーしたときの最大限の腐食影響、スケール発生の可能性、アスファルテン沈着に関して調査しました。
2) CO2漏洩モニタリング、廃坑に関する調査
圧入されたCO2の量で適切に油層内に収まりその効果を発揮しているかを漏洩モニタリングによって把握する方法について調査しました。あわせて、CO2圧入井の廃坑方法に関しても調査を行いました。
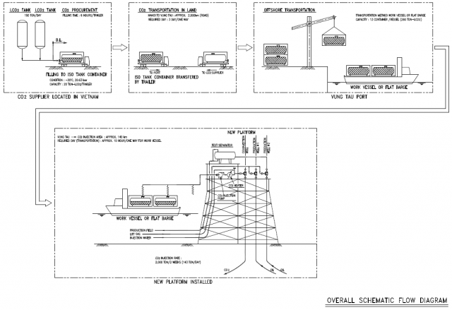
(2) 実証試験の実施計画策定
実証試験に必要な地表設備に関する実施計画を策定しました。具体的な概念検討の主項目(4項目)を実施しました。
1) CO2の供給・受入・圧入等に係る操業方針案の策定
CO2の供給先、陸上・海上運搬方法、陸上・海上受入方法、圧入業務サポートの調査など実証試験が実行に移る段階での協力体制などを現地調査により確認しました。
2) 坑井間パイロットテストに関連する地上設備の概念検討
圧入対象とするエリアで圧入に関連する設備をすべて搭載した新規プラットフォームとして操業するのか、最低限の設備を搭載した新規プラットフォームとするのか、もしくは既存のプラットフォームに圧入関連設備を載せるのか、プラットフォームを立てずに海底設備で操業するのかのアイディアを新規に必要なパイプラインの本数、現地の利用可能なスペースやパイプラインのタイインポイントや操業運転面など多くの観点から適切と考えられる開発計画を顧客の意向も踏まえて選定しました。
3) プロジェクトスケジュールの作成
上記2)で選択した結果を基に基本設計・詳細設計等の設計業務、設備建設、コミッショニング、実証試験、デコミッショニングに至るまで一貫した全行程の概算スケジュールを作成しました。
4) 設計業務、設備建設(プラットフォーム新設または既存プラットフォームの改造・増強を含む)、コミッショニング等に係る概算費用の算定
上記3)の内容に関して概算費用の算定を石油ガス開発設備コスト評価ソフト(Oil and Gas Manager;OGM)や弊社の知見を利用して算定しました。
Copyright© Japan Oil Engineering Company Ltd. (JOE), All Rights Reserved